احسان بنایی وطن
کاری از گروه معماری بنایی وطن:
گروه معماری بنایی وطن از سال 1388 فعالیت خود را در حوزه های طراحی، معماری، مشاوره و اجرا آغاز نمود.
این مجموعه هدف خود را بر پایه بهینه سازی فضا، با در نظر گرفتن پارامترهای مدرنیته و زیبایی در صنعت ساختمان قرار داد و با ارائه خدماتی از جمله مشاوره، طراحی معماری، نظارت و مدیریت پیمان در راستای تحقق اهداف کارفرمایان و با درنظر گرفتن ضوابط و اصول فنی؛ همچنین هویت بخشی به فضا ها، جهت ایجاد تحولی بزرگ گام برداشت.
با عنایت به چشم انداز اصلی مجموعه که در راستای جلب رضایت کارفرمایان می باشد؛ بهره گیری از تیم مجرب و با انگیزه، از بزرگترین ویژگی ها و نقاط قوت این مجموعه محسوب می گردد که ماحصل آن خانواده بزرگی از مخاطبین و مشتریان ما را در پی داشته است.

از جمله فعالیتهای گروه معماری بنایی وطن با هدف مشتری مداری و برند سازی به شرح ذیل میباشد:
⚪️ طراحی معماری مراکز درمانی مطابق با استانداردهای دانشگاه علوم پزشکی و دفتر فنی دانشگاه
⚪️ تدوین طرح درمانی و تجاری برای کارفرمایان و پزشکان جهت سرمایه گذاری های کوتاه مدت و بلند مدت
⚪️ مشاوره کارفرمایان در زمینه طراحی و اجرا قبل و حین انجام پروژه
⚪️ طراحی هویت مدار فضا های مسکونی، درمانی، تجاری، اداری، باغ و ویلا
⚪️ نظارت بر اجرای صحیح پروژه مطابق با طرح و نظر مورد تایید کارفرما
⚪️ تولید المان های داخلی اعم از مبلمان، اکسسوری و .... متناسب با طراحی انجام شده بصورت اختصاصی برای کارفرمایان
⚪️ ساخت و تجهیز فضاهای مسکونی، درمانی، اداری، تجاری، باغ و ویلا همچنین محوطه سازی و ....
⚪️ معرفی مواد و مصالح مرغوب و مقرون بصرفه به کارفرمایان جهت کاهش هزینههای پروژه حفظ کیفیت و مدیریت منابع پروژه و توسعه آن
⚪️ مشارکت با کارفرمایان و حضور در جلسات توجیهی به منظور جذب سرمایه گذار در پروژه ها



اجلاس طراحان و سازندگان اصفهان
برخی از پروژه های طراحی، ساخت و اجرای گروه معماری بنایی وطن:
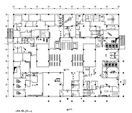
رادیولوژی ربیعیان:

طراحی مراکز درمانی در اصفهان

طراحی مراکز درمانی در اصفهان

طراحی مراکز درمانی در اصفهان

طراحی مراکز درمانی در اصفهان
کلینیک ماکان:

طراحی مراکز درمانی در اصفهان

طراحی مراکز درمانی در اصفهان

طراحی مراکز درمانی در اصفهان
رادیولوژی و سونوگرافی دکتر عزیزی:

طراحی مراکز درمانی در اصفهان

طراحی مراکز درمانی در اصفهان

طراحی مراکز درمانی در اصفهان

طراحی مراکز درمانی در اصفهان

طراحی مراکز درمانی در اصفهان

طراحی مراکز درمانی در اصفهان
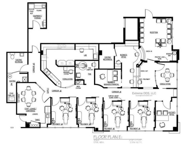
کلینیک تخصصی نیلا:

طراحی مراکز درمانی در اصفهان

طراحی مراکز درمانی در اصفهان

طراحی مراکز درمانی در اصفهان

طراحی مراکز درمانی در اصفهان

طراحی مراکز درمانی در اصفهان

طراحی مراکز درمانی در اصفهان

طراحی مراکز درمانی در اصفهان

طراحی مراکز درمانی در اصفهان

طراحی مراکز درمانی در اصفهان

طراحی مراکز درمانی در اصفهان

طراحی مراکز درمانی در اصفهان

طراحی مراکز درمانی در اصفهان

طراحی مراکز درمانی در اصفهان

طراحی مراکز درمانی در اصفهان

طراحی مراکز درمانی در اصفهان

طراحی مراکز درمانی در اصفهان

طراحی مراکز درمانی در اصفهان

طراحی مراکز درمانی در اصفهان

طراحی مراکز درمانی در اصفهان

طراحی مراکز درمانی در اصفهان

طراحی مراکز درمانی در اصفهان
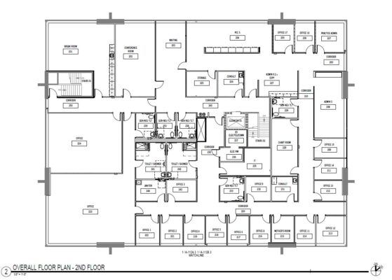
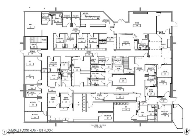
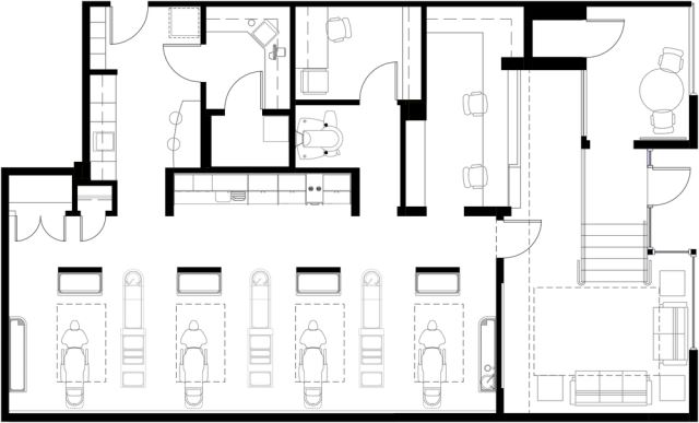
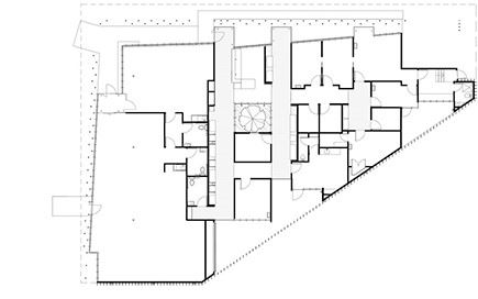
ضوابط معماری مراکز درمانی:
تمامی مراکز دارای مشخصات فنی هستند.عملکرد در این فضاها با مطالعه در دانشگاه های علوم پزشکی صورت گرفته و نظارت بر این نقشه ها توسط دفتر فنی دانشگاه انجام میگیرد.
مزیت بازسازی مراکز درمانی امکانات مراقبت های بهداشتی را بروز نگه داشته و بیماران از خدمات با کیفیتی بهره مند میگردند. این عملیات که نوسازی، گسترش یا بازسازی ساختمانهای موجود جهت تطبیق با افزایش تعداد بیماران و برخورداری از بک تجربه خوب بیماران در فضای درمانی را شامل میشود.مکانیسم بازسازی باید به گونهای باشد که پیشرفتهای فناورانه در مراقبتهای بهداشتی مثل تجهیزات پزشکی بروز و سیستمهای دیجیتال را به فضا اضافه کند. این کار نتایج بهتر و خوبی را به بیماران ارائه میدهد و در نتیجه دستاورد آن بیشتر شدن ظرفیت و مدرن شدن مرکز مراقبتهای بهداشتی را میباشد.

طراحی مراکز درمانی در اصفهان
تأثیر رنگ در دکوراسیون:
انتخاب رنگ:
اولین قدم، برای داشتن دکوراسیون زیباست.
لوکسترین لوازم اگر ترکیب رنگی مناسب نداشته باشند جلوه و زیبایی خود را از دست خواهند داد.
پیروی از قانون 60_30_10
این قانون بیان میکند 60 درصد رنگ کلی اتاق باید رنگ زمینه باشد و در نگاه اول متوجه اش بشیم.
رنگ بعدی 30 درصد از فضا را تشکیل میدهد مثل میز،مبل و پرده ها .
رنگ سوم 10 درصد وسایل فرعی مانند:
وسایل تزئینی رنگهای محیط را در بر میگیرند.
برای مثال یک استایل مردانه؛ 60 درصد از کل لباس را کت و شلوار، 30 درصد آن را پیراهن و 10 درصد آن را کروات تشکیل داده است.
انتخاب رنگ مناسب:
متناسب بودن رنگ وسایل و محیط مثل کفپوش، دیوار، پرده،کابینت و لوازم منزل ضروريست.
باید به سبک طراحی محیط، نوع کاربری، سن،جنسیت افراد ساکن و ابعاد فضا توجه داشت.
دسته بندی رنگها:
از رنگهای مکمل استفاده کنید و رنگهای اصلی را در کنار رنگهای فرعی قرار دهید.
| 3 رنگ اصلی | زرد | آبی | قرمز |
| 3 رنگ فرعی | بنفش | نارنجی | سبز |

تغییرات طراحی کلینیک دکتر ربیعی و رضایتمندی ایشان:
جهت کسب اطلاعات بیشتر با مشاوران ما تماس بگیرید:
طراحی مراکز درمانی در اصفهان
ارتباط با ما:
گالری تصاویر
نقشههای درمانی:






















طراحی مراکز درمانی در اصفهان

پیشنهادات و انتقادات خود را با ما در میان بگذارید:
طراح سایت و سئو:

منیژه زارع 09356700648











































